Burrleigh House, Main Street, Caldecote, Cambridgeshire, CB23 7NU

  • Unconditional Online Auction Sale
  • Guide Price* : £450,000+
  • Bedrooms: 3

Description

• Detached Edwardian house requiring complete renovation
• Total plot of circa 0.8 acres
• Rural Village location
• Freehold with vacant possession

A unique opportunity to purchase a detached Edwardian house which is in need of complete renovation, but offers the potential for extension or redevelopment of the property (subject to planning permission).

The original building features brick elevations beneath a pitched slate covered roof, with the previous layout featuring the following accommodation;
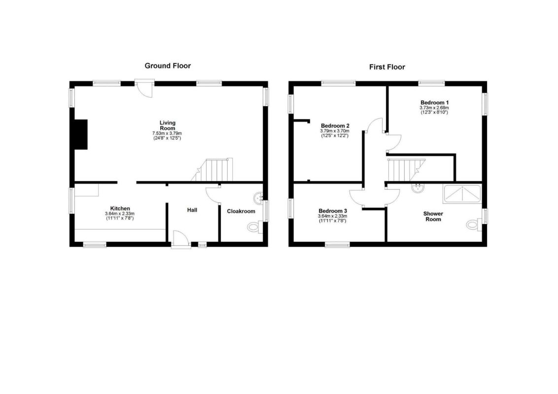
Ground floor - Living Room, Kitchen, Cloakroom, Hall
First floor - 3 Bedrooms and a Shower Room.

The total internal area is approximately 1000ft² / 94m².

It is understood that the property is not listed, but it does lie within the Caldecote Conservation Area.

The current owner commenced renovation works, including stripping out the property and installing Helical-style supports to internal and external walls within the property. However a lack of time means that the opportunity now exists for a new buyer to undertake the works and complete the exciting project.

To the rear of the house are a collection of outbuildings including timber storage sheds, and 4 bay pole barn.

To the north west corner of the L-shaped site is understood to be the remnants of a second property, known as 'Bieldy Bungalow', for which only part of the chimney breast remains on site.

The generous plot features large areas of garden, mainly laid to grass but also featuring a number of trees, shrubs and plants, and is a true feature of the property.

Burrleigh House is in need of complete renovation but offers buyer an exciting opportunity to tailor this well located house to their needs.

Tenure

Freehold with vacant possession

Viewing

Cheffins Property Auction Dept 01223 213777

Location

Burrleigh House is ideally positioned opposite the picturesque village church in the desirable Cambridgeshire village of Caldecote. The house is set back and above the road and accessed via a steeply sloping private driveway.

The hamlet of Caldecote has limited facilities but shopping and schooling can be found in the villages of Toft and Highfields Caldecote which are approximately 2 miles away, while the city of Cambridge is approximately 7 miles to the east of the property.

Auctioneer's Note

The property has been completely stripped out and is therefore not habitable in its current condition.

The successful bidder will pay a buyer’s contract fee on exchange of contracts of:
£900 including VAT for purchases upto and including £100,000.
£1,500 including VAT for purchases of £101,000 to £300,000.
£2,100 including VAT for purchases of £301,000 and above.
This fee is only payable by the successful bidder.

Legal Packs

www.cheffins.co.uk/auctions/property-auctions or Monika Patel of Mishcon de Reya, Africa House, 70, Kingsway, London, WC2B 6AH

Vendors Solicitor
Monika Patel
020 3321 7196

* Generally speaking Guide Prices are provided as an indication of each seller's minimum expectation, i.e. 'The Reserve'. They are not necessarily figures which a property will sell for and may change at any time prior to the auction. Virtually every property will be offered subject to a Reserve (a figure below which the Auctioneer cannot sell the property during the auction) which we expect will be set within the Guide Range or no more than 10% above a single figure Guide.

Loading the bidding panel...

Joint Agent

Cheffins
01223 213777

Vendors Solicitor

Monika Patel
020 3321 7196

Agreement Documents

Legal Documents

Log in to view legal documents

Additional Documents

Related Documents

Make an Enquiry

Submit an enquiry and someone will be in contact shortly.

 
*  
*  
*
*
*

Share